LED灯在FDA监管范围吗?
多数进出口商知道FDA为美国管理食品、药品、化妆品、医疗器材的主管机关,但有时很多人却疏忽了释放辐射电子产品(radiation emitting product)亦为该署规范产品之一。
FDA规范▼ FDA规范释放辐射电子产品之法源为「联邦食物、药品与化妆品法」第五篇第531-542条(FEDERAL FOOD DRUG AND COSMETIC ACT,简称为FD&C)。所谓的释放辐射之电子产品,包括电视天线与屏幕、微波炉、诊断用X光设备及使用X光或激光相关产品(如光驱及激光指示器(laserpointer))等。 难道所有的电子产品都在FDA监管范围内?当然不是。
灯具是否在FDA监管范围▼ 据多家美国报关行反馈,目前灯具中只有用于医疗设备的、带有较强辐射性的,太阳灯、紫外线灯和高强度水银蒸汽放电灯必须满足FDA的要求,对于其他家用照明的LED 灯,不符合辐射性能标准,暂不在FDA监管范围内,也没有收到FDA新的通知。
辐射性能标准的判定▼ 关于辐射性能标准,具体又怎么判定呢? 1968年美国政府发布了RadiationControl for Health and Safety Act《控制辐射、确保健康安全法》。该法律的在于保护公众不受不必要的电子产品辐射伤害。为此,FDA制定了有关电子产品辐射的有关性能标准,强制要求进入美国市场的辐射性电子产品都必须符合有关的性能标准。FDA对辐射性灯具的要求主要收录在美国联邦法规21CFR part 1040中。 原文摘录: SUMMARYOF PERFORMANCE STANDARDS 21 CFR 1040.20. Sunlamps and Sunlamp Products (b) Definitions. …… (9)Sunlamp product means any electronic product designed toincorporate one or more ultraviolet lamps and intended for irradiation of anypart of the living human body, by ultraviolet radiation with wavelengths in airbetween 200 and 400 nanometers, to induce skin tanning. (太阳灯产品是指任何电子产品,其设计成包含一个或多个紫外线灯并用于照射活体人体的任何部分,紫外线辐射,波长在200-400纳米之间的空气中,以诱导皮肤晒黑。) (11) Ultraviolet lamp means any lamp that producesultraviolet radiation in the wavelength interval of 200 to 400 nanometers inair and that is intended for use in any sunlamp product. (紫外灯是指在空气中产生紫外线辐射的波长为200〜400纳米的任何灯,用于任何日光灯产品。) (c) Performance requirements --(1) Irradiance ratio limits.For each sunlamp product and ultraviolet lamp, the ratio of the irradiancewithin the wavelength range of greater than 200 nanometers through 260nanometers tothe irradiance within the wavelength range of greater than 260nanometers through 320 nanometers may not exceed 0.003 at any distance anddirection from the product or lamp. (性能要求 - (1)辐照比限值。对于每个日光灯产品和紫外灯,大于200纳米到260纳米的波长范围内的辐照度与大于260纳米到320纳米的波长范围内的辐照度的比例在任何距离和方向上不得超过0.003。
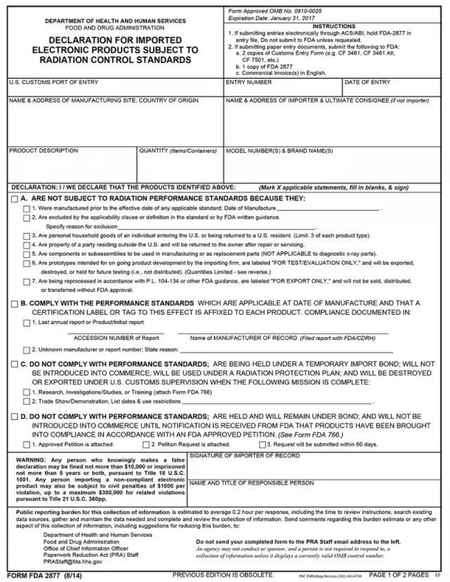
FDA申报▼ 进口商在辐射性产品进口通关时除向海关申报以外,还必须以FDA2877表格(符合辐射控制标准的进口电子产品声明<附表格>) 向FDA申报。 申报表除了需列明生产厂、进口商、产品等的有关信息外,符合FDA监管范围内性能标准的产品,还需要上述的外国生产厂在FDA的注册号。申报资料不全或不符合要求,都会直接被FDA拒之门外,即使海关批准放行也不能进入美国市场销售。除了对申报资料进行审核之外,FDA还有权在其进入市场之前或之后进行取样、检验,以检查此进口产品是否确实符合美国有关法规的强制性要求,对违规产品FDA将严格处理。 FDA2877表格: FDA 的处罚▼ FDA 的处罚有两种:对违规产品的处罚有扣留、退回外国和就地销毁,与医疗器械类似,对违规电子产品也有“自动扣留”的制度;而对有意违规或假报资料,,情节严重的,根据有关法律法规,可以罚款或判刑或两者兼有。


粤公网安备 44030702005211号